SQ FT
0
BATHROOMS
0
Bedroom
0

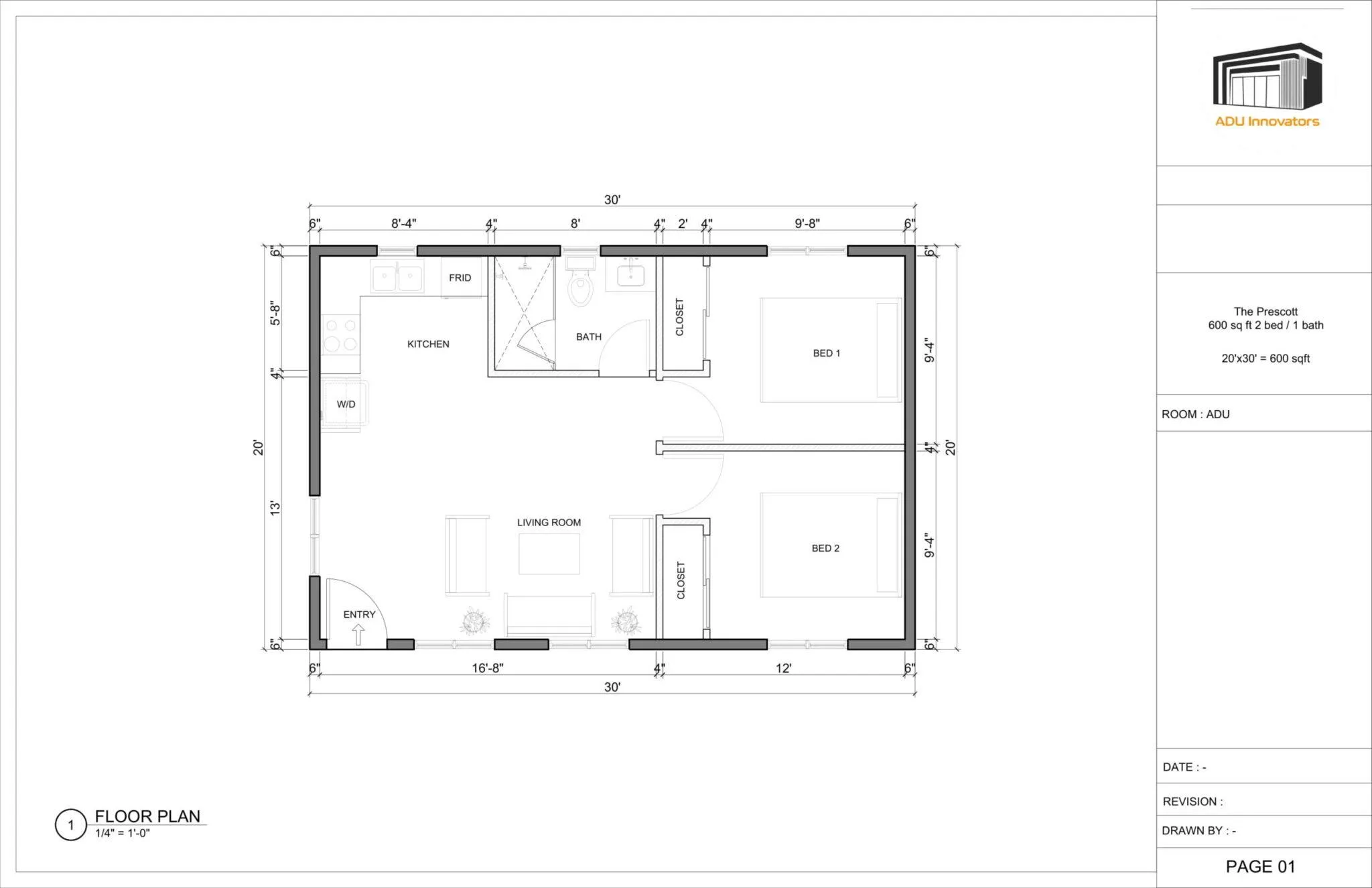
The Prescott

A 600-square-foot, two-bedroom, one-bath ADU designed for smart, efficient living. Its layout makes the most of every square foot, offering privacy, flow, and balance. The Prescott blends practicality with a clean, timeless look that feels both functional and inviting.
STANDARD MATERIALS

Standard Finishes

Thoughtfully selected materials included in every ADU.

Appliance Package

Frigidaire Stainless Steel Appliance Bundle

Appliance Package 002 scaled
Appliance Package 003 scaled
Appliance Package 001

Cabinets

Shaker Soft Close cabinets
More colors available upon request
Cabinets 001
Cabinets 002
Cabinets 003

Kitchen Surfaces & Fixtures

Clean. Professional. Covers sink + faucet + countertops together.

Gauge Stainless Steel Workstation Kitchen Sink scaled
Gauge Stainless Steel Workstation Kitchen Sink
Countertops
Countertops
Faucet scaled
Faucet: Model # HD67726W-1110H
Matte Black (Chrome available upon request)

Bathroom Light & Mirror

Integrated mirror and lighting solution selected for clarity, efficiency, and a clean contemporary finish.

Bathroom Light and Mirror 002
24 in W x 32 in H Rectangular LED Light Vanity Mirror
Bathroom Light and Mirror 001 scaled

Downlight Flush Mount Disk Light Fixture
Black (White available upon request)
Model # A01062304A

Bathroom Faucet, Sink, & Toilet

Contemporary bathroom fixtures chosen for reliable performance and everyday functionality.

Bathroom Faucet Sink Toilet 003
Rectangular Undermount Bathroom Sink white
Model # DV-1U306
Bathroom Faucet Sink Toilet 002 scaled
Single Handle Bathroom Sink Faucet Matte Black
Bathroom Faucet Sink Toilet 001 scaled
Single Flush Soft Close Standard Toilet White

Tub & Shower

MOEN Shower Trim Package
Matte Black (Chrome available upon request)
Tub Shower 001
Tub Shower 002
Tub Shower 003

Washer / Dryer

Space-efficient washer and dryer units for everyday convenience.
Washer Dryer 001 scaled

Stackable Washer and Dryer
White
Model # FLCE7522AW

washer dryer
LG Electric Stackable Washer/Dryer in Black Steel w/ Steam
Model # WKEX200HBA

Flooring

Luxury Waterproof Vinyl, Other colors available upon request
8 mm thickness (Very Durable)
Flooring 001
Flooring 002
Flooring 003
Flooring 004

Doors

Modern doors designed for durability and seamless integration.
doors 002
Solid White Shaker Door
doors 001
Solid Black 4 Glass Panel Front Door

Ceiling Fans

Other colors and designs available upon request
Ceiling Fans 001
Ceiling Fans 003
Ceiling Fans 002
Laminate Roofing Shingles
Laminate Roofing Shingles (Available in most Colors) (Clay Tile or Concrete Tile Roofing is available upon request or if necessary)
Exterior Light Fixtures
Exterior Light Fixtures
Waterproof Exterior Light Fixtures
CTA Image

Get in touch

Get in Touch with ADU Innovators